նոր պատկերասրահի Մրցույթ

2016

Երեւան
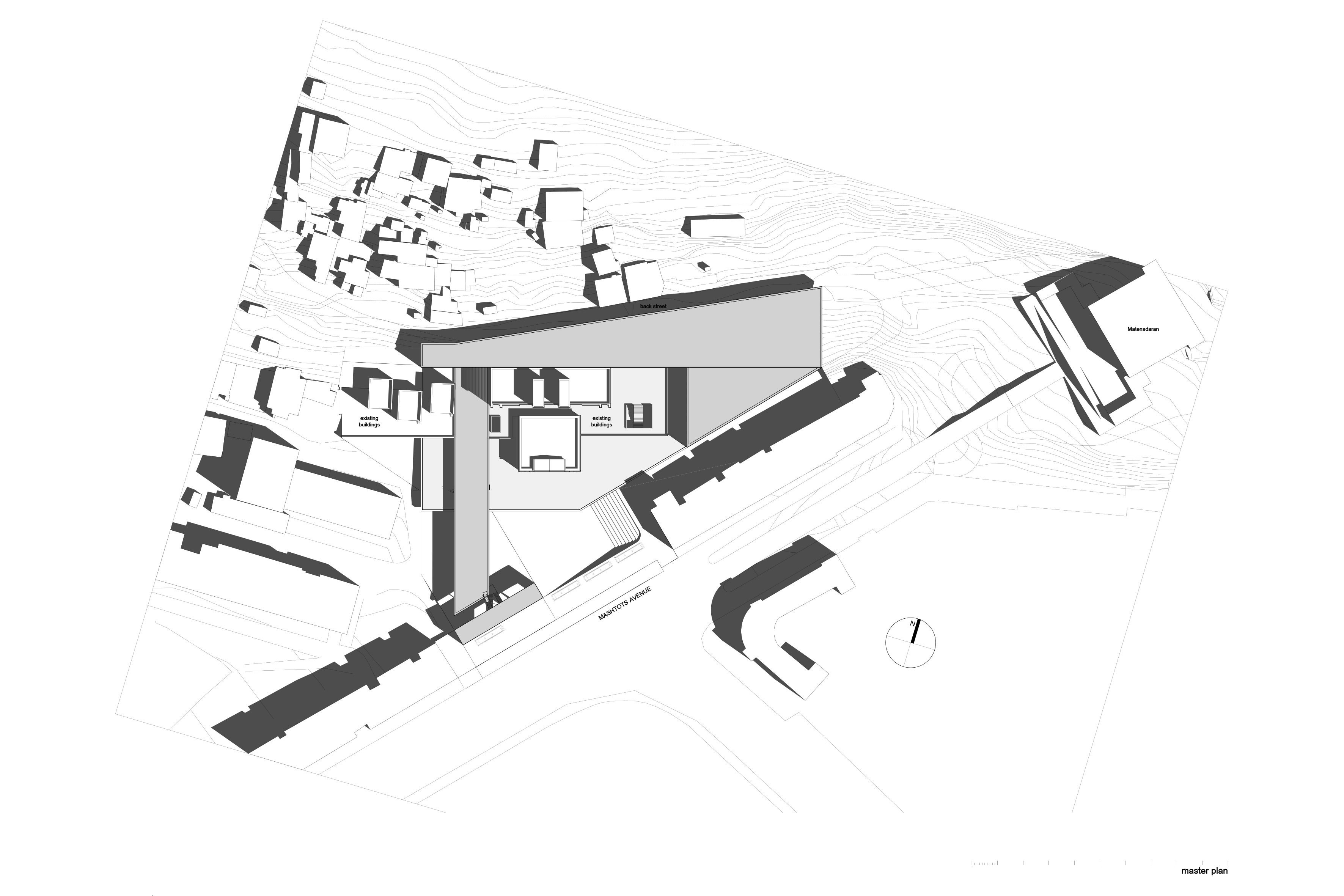
Տարածքը, որտեղ նախատեսված է նոր պատկերասրահի շենքի կառուցումը, գտնվում է Մաշտոցի պողոտային եւ Անտառային փողոցի միջեւ՝ Մատենադարանի եւ Կասկադ համալիրի հարեւանությամբ: Տարածքը պարսպապատ է: Այստեղ գտնվող համալիրը ծառայում է իբրեւ ընդունելության եւ հանգստի տուն բարձրաստիճան հյուրերի համար: Համալիրի կառույցները նախագծվել են տարբեր ժամանակահատվածներում տարբեր հեղինակների կողմից: Հողակտորն ունի խիստ արտահայտված թեքություն եւ բաժանված է հարթակների՝ ըստ բարձրության:
Առաջարկում ենք՝
• հանելով պարիսպը՝ բացել այգին դեպի Մաշտոցի պողոտա
• պատկերասրահի նոր շենքը տեղադրել Անտառային փողոցի եւ ընդունելության տան միջեւ ընկած խիստ թեքություն ունեցող լանջի վրա՝ ամբողջ երկարությամբ:
• պատկերասրահի մուտքը սկսել անմիջապես Մաշտոցի պողոտայից՝ մեծ բետոնե պորտալով, որը մուտքին կհաղորդի հանդիսավորությունը: Պորտալը բարձրությամբ նույնն է, ինչ հարեւանությամբ գտնվող բնակելի շենքերը եւ այն չի խախտի պողոտայի այդ հատվածի կառուցապատման սկզբունքը:
• ամրացնել գոյություն ունեցող կառույցների հիմքերը
• ազատվելով հենապատից եւ հարթակները կազմող հողի ծավալից՝ օգտագործել այդ տարածքը իբրեւ շենքի համար սպասարկող եւ օժանդակ մակերեսներ: Առաջացող կանաչապատ հարթակները կծառայեն հանգստի, ցուցադրության եւ այլ միջոցառումների համար, ընդ որում ամենաբարձր հարթակը կձգվի պատկերասրահից մինչեւ Մաշտոցի պողոտա՝ հանդիսանալով յուրoրինակ ճեմուղի եւ միեւնույն ժամանակ ծածկ, որը ե՛ւ կպաշտշանի, ե՛ւ կշեշտի հողակտորի միջնամասում գտնվող գլխավոր մուտքը:
Գոյություն ունեցող կառույցները ամրացնելուց եւ վերանորոգելուց հետո կարելի է կա՛մ շահագործել իբրեւ պատկերասրահի մաս, կա՛մ պահպանել ներկայիս եղած նշանակությունը: Մուտքից ձախ գտնվող մասնաշենքերը առաջարկում ենք օգտագործել իբրեւ պատկերասրահի վարչական տարածք: Թանգարանների եւ պատկերասրահների խտությունը Երեւանի այս բանուկ հատվածում խթան կհանդիսանա զբոսաշրջության զարգացման համար:
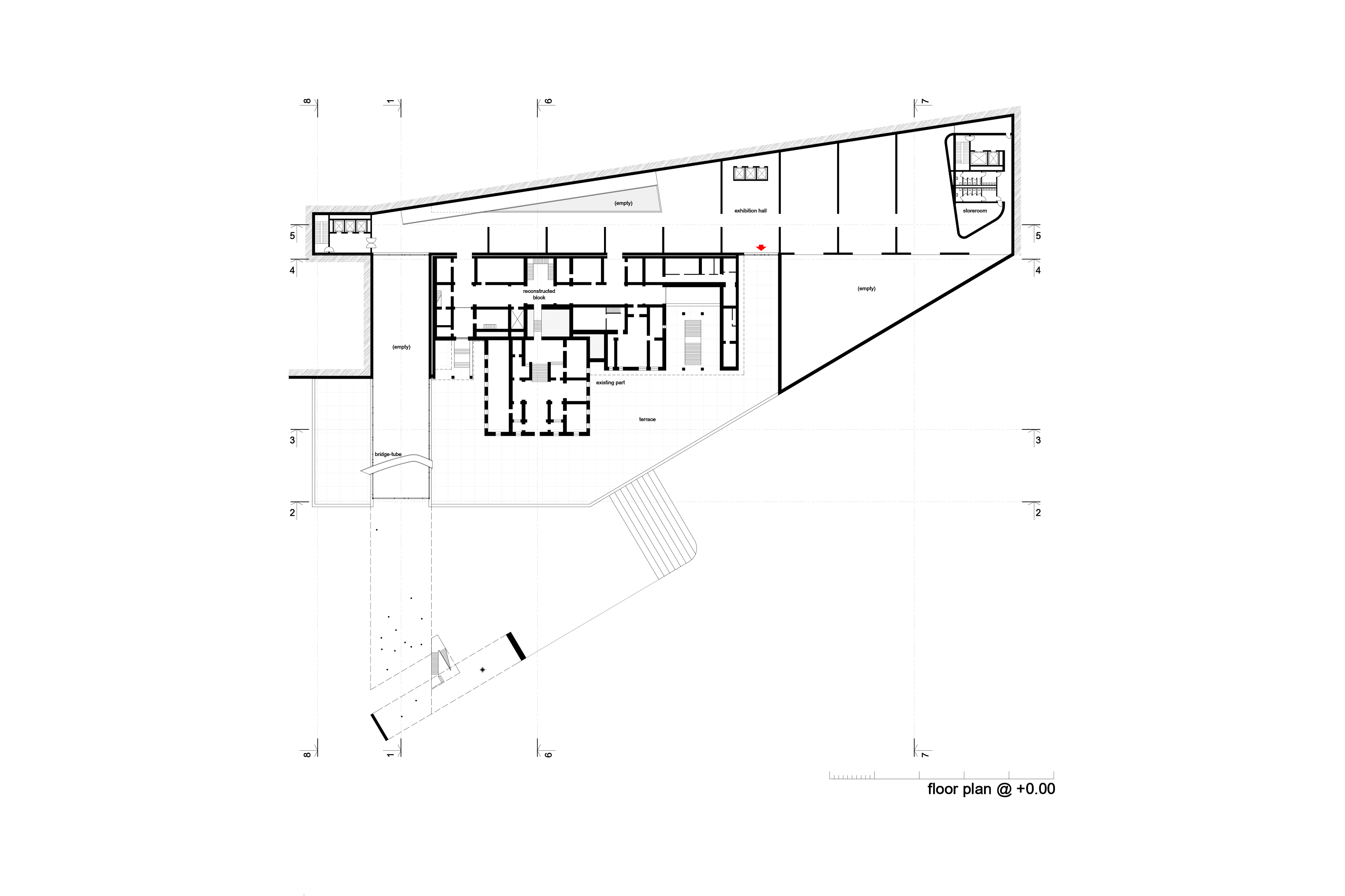
Պատկերասրահի շենքը բազմահարկ է՝ 6 հարկ 5.20մ բարձրությամբ: Ներքին տարածությունը բազմալույս է, հարկից հարկ կարելի է բարձրանալ հարմարավետ թեքուղով: Շենքում նախատեսված է տեղադրել մարդատար եւ բեռնատար վերելակներ, էվակուացիոն աստիճանավանդակներ, սանհանգույցներ հարկաբաժիններում:
Անտառային փողոցի վրա բացվող ճակատը մեկ ու կես հարկանի է՝ 8մ բարձրությամբ, որը մոտ է հարեւանությամբ գտնվող կառույցների բարձրությանը: Մաշտոցի պողոտայի վրա բացվող ճակատը, որը գտնվում է համալիրի ամենախորքում, պատված է U-Glass տիպի ապակյա երկարավուն սալերով: Ճակատը զուրկ է ակտիվ ճարտարապետական էլեմենտներից. հանդիսանում է յուրահատուկ «գործվածք», ֆոն գոյություն ունեցող կառույցների համար: Պատկերասրահի ճակատը՝ լուսաթափանց, բայց ոչ թափանցիկ, օրվա մութ ժամերին կճառագայթի մեղմ կաթնագույն լույս՝ ստեղծելով անկրկնելի լուսային կերպար:
Անտառային փողոցի կողմից կազմակերպված է ծառայողական մուտք՝ պատկերասրահը սպասարկելու համար: