"Dragonfly INN" Carpet Museum in Garni

2020

Garni
The project "Dragonfly INN" carpet museum is located in Garni, on the road to Geghard.
The building used to function as a restaurant and was built without the intervention of design specialists.
The walls are mainly made of rough stones and not built at once, with the absence of a certain constructive system.
Taking into account the conclusion given about the structure and its constructive elements, a reinforcement project was adopted for the building: the roofs and walls were strengthened, the constructive scheme was clarified.
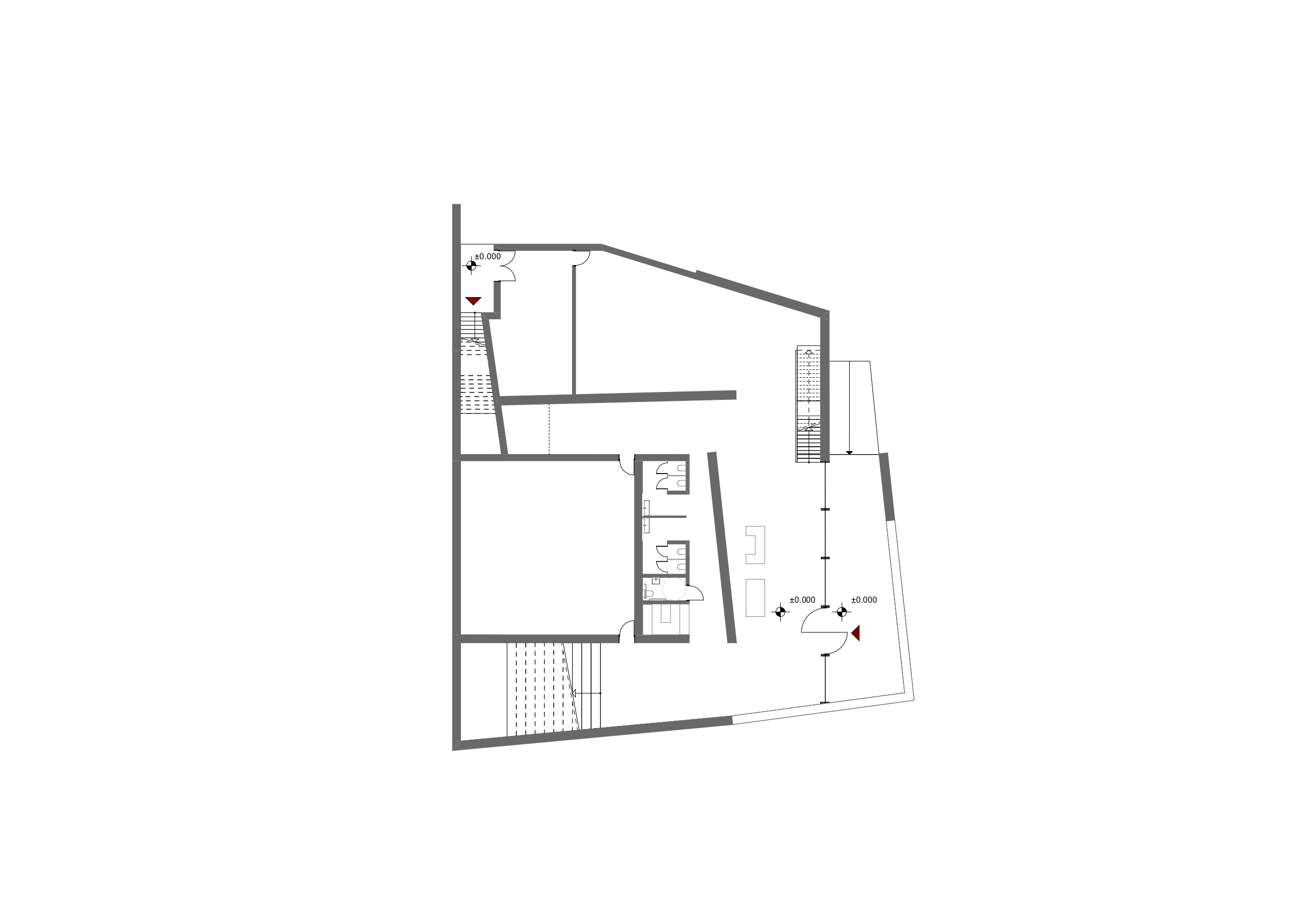
The building was redesigned and adapted as a museum-exhibition hall. Conferences have been adapted to conduct. An exhibition hall was added at the back of the building.
As the main façade opens onto the highway, access to the museum is organized in the middle of the space, where you can relax and wait before watching a show. The light-glazed hall opens into the yard.
The museum is equipped with amenities, bathrooms and a cloakroom.
The roof of the hall at the back is exploitable, the cafe and the auditorium-hall open on it.
The adapted structure is equipped with engineering systems corresponding to its new function.