Առանձնատուն Երևանում

2012

Երեւան
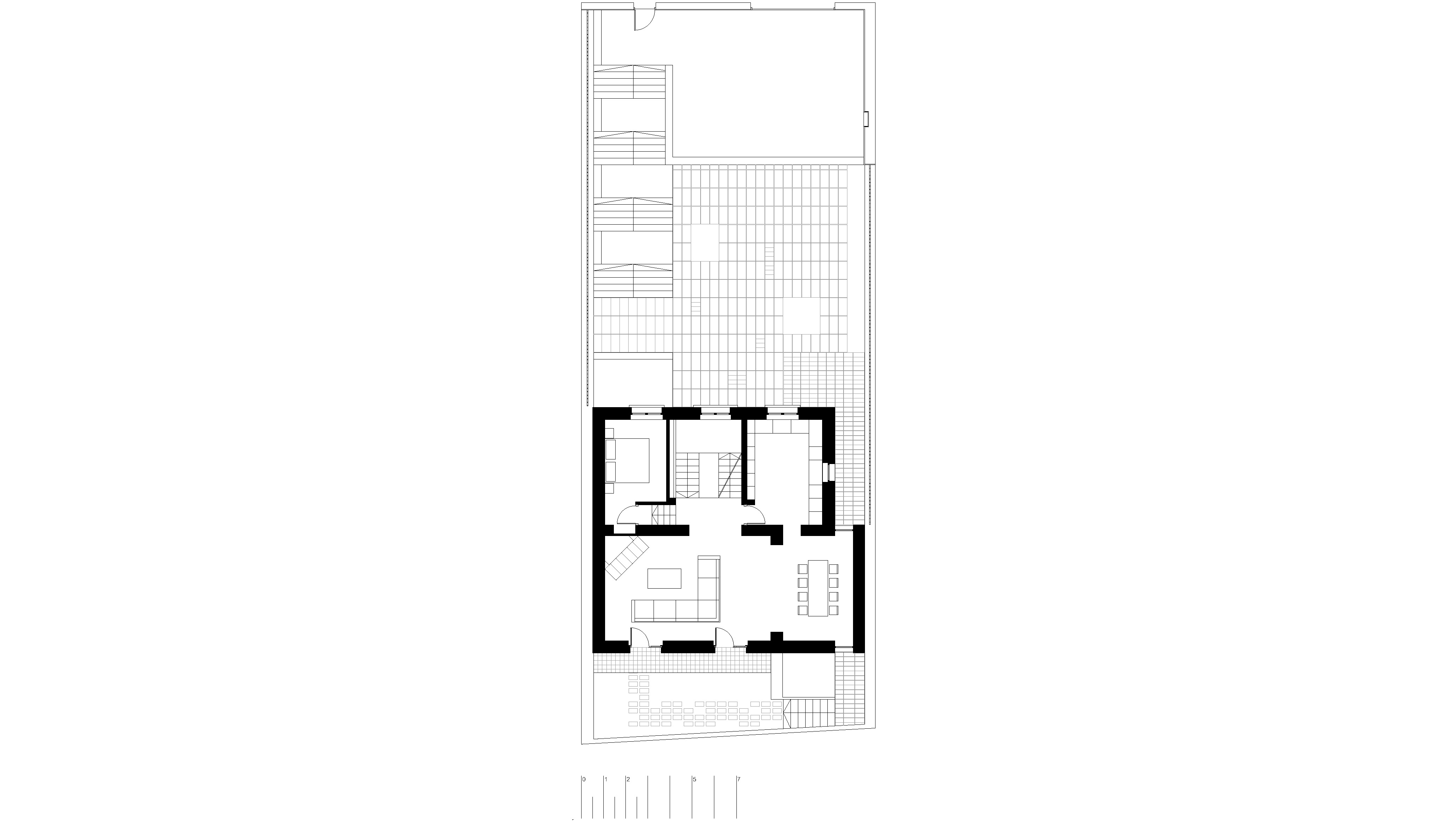
Նախագիծը նպատակ ուներ մեծացնել առանձնատունը, բարելավել կենցաղը և ունենալ հարմարավետ արվեստանոց ստեղծագործելու համար։ Արդյունքում պահպանվեց և ամրացվեց 1950թ. կառուցված առանձնատունը և լրացվեց նոր հարկաբաժնով, օգտագործելով ժամանակակից նյութեր։ Ապահովվեց ներդաշնակ միջամտություն խիտ կառուցապատման մեջ և նորն ու հինը համադրվեց ավելի հնչեղ և արտահայտիչ դարձնելով ճարտարապետությունը։